WIE FINDEST DU DIE Planung Bauvoranfrage?
welche VOR / Nachteile gibt es?
WIE IST DEINE Gesamtbewertung?
WAS IST DEINE KONSTUKTIVE KRITIK?
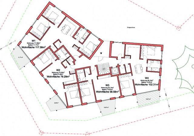
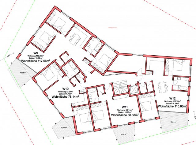
Es soll ein Mehrfamilienhaus auf dem Grundstück gebaut werden. Das Ziel ist das Maximale rauszuholen.
Der Plan stammt vom Architekten, welcher den Auftrag bekommen hat. Das ist sein Vorschlag. Ich hätte gerne eine Zweitmeinung.
Was gegen eine Wohnung mit über 100 m² spricht. Pro Quadratmeter ist der Mietertrag bzw. Verkaufserlös keiner, die Baukosten jedoch gleich hoch.
Ich würde es eigentlich besser finden, wenn man 50 % ca. 60 m² Wohnung und 50 % ca. 80 m² Wohnungen hätte. So hätte man einen höheren Mietertrag und höheren Verkaufserlös. Es gibt mehr Personen die mal schnell einen Kredit für 300-400 000 aufnehmen können, als für über 500 000 €. Ebenso ist es mit der Miete.
Für das Mehrfamilienhaus möchte ich einen Kredit aufnehmen. Dann teilweise die Wohnungen vermieten, teilweise verkaufen. Hier gilt die Regel. 3 Objekte pro 5 Jahre können verkauft werden, damit keine gewerbliche Tätigkeit vorliegt und keine Gewerbesteuer anfällt.
Zuerst also mal mit den Mieteinnahmen der Kredit teilweise abbezahlt werden, dann alle 5 Jahre 3 Wohnungen verkauft werden und eine Sondertilgung stattfinden.
Danke für dir mir gewidmete Zeit.













